Søg bolig

0 Boliger til salg

Askildrupvej 23, 9520 Skørping

Sagsnummer 469-6219
Boligtype Villa
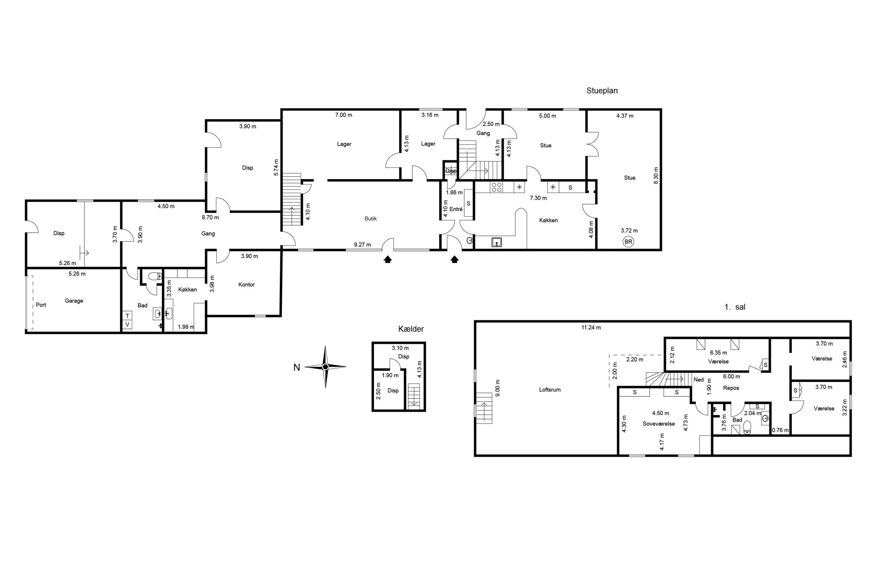
Boligareal 194 m2
Grundareal 1527 m2
Kælderareal 10 m2
Bygget/ombygget 1903 / 1986
Antal rum 12
Etager 1
   
Energimærke
OBS: du kan energi renovere denne bolig klik her
   

Kontantpris kr. 625.000

Udbetaling kr. 35.000
Brutto kr. 3.413
Netto kr. 2.716
Ejerudgift kr. 1.845
Brutto og Netto er eksklusiv ejerudgifter

Kom til fremvisning Hent salgsopstilling Bestil video fremvisning

Kontakt

Hans Cortsen
Mail: hkc@mailreal.dk
Tlf.: 4075 1577

RealMæglerne Hans Cortsen
R469 Hadsundvej 26 9575 Terndrup Mail: 9575@mailreal.dk
Tlf.: 9831 1577


Velkommen til St. Brøndum.  Askildrupvej 23 - Særdeles rummelig og alsidig ejendom der historisk har været anvendt til såvel byens skole - bageri samt senest stort bogantivkvariat.  Den rummelige ejendommen er registreret med 194 dm2 beboelse fordelt over 2 plan , og erhvervsdelen er
.. Læs mere...

Er der økonomi til boligen?

Kontantpris kr. 625.000
Udbetaling kr. 35.000
Ejerudgift kr. 1.845

Kontakt

Hans Cortsen
Mail: hkc@mailreal.dk
Tlf.: 4075 1577

RealMæglerne Hans Cortsen
Hadsundvej 26
9575 Terndrup
Mail: 9575@mailreal.dk
Tlf.: 9831 1577

Skriv din pris

Giv et uforpligtende bud. Dit bud er ikke bindende for dig, ligesom sælger ikke er forpligtet til at acceptere dit bud.

* Der samles ingen personlige oplysninger uden dit udtrykkelige samtykke. Ved at klikke på denne checkboks giver du dit samtykke til, at dine data samles og behandles af RealMæglerne A/S for at kunne kontakte dig. Du kan til enhver tid tilbagekalde dit samtykke. For at gøre dette skal du blot sende en meddelelse til info@realmaeglerne.dk. Læs mere på privatlivspolitikkerne.

Bestil Salgsopstilling

* Der samles ingen personlige oplysninger uden dit udtrykkelige samtykke. Ved at klikke på denne checkboks giver du dit samtykke til, at dine data samles og behandles af RealMæglerne A/S for at kunne kontakte dig. Du kan til enhver tid tilbagekalde dit samtykke. For at gøre dette skal du blot sende en meddelelse til info@realmaeglerne.dk. Læs mere på privatlivspolitikkerne.

Bestil fremvisning

Ved at indsende formularen, giver du dit samtykke til, at dine data samles og behandles af RealMæglerne A/S for at kunne kontakte dig. Du kan til enhver tid tilbagekalde dit samtykke. For at gøre dette skal du blot sende en meddelelse til info@realmaeglerne.dk. Læs mere på privatlivspolitikkerne.
Fandt du ikke det du søgte? - Opret dig som bruger og få mere ud af din boligsøgning
Dit RealMæglerne

Log ind på RealMæglernes Boligagent

Med Mit RealMæglerne er det nemt at følge boligmarkedet. Leder du efter nyt, kan du gemme dine favorit boliger og målrette din søgning ned til mindste detalje. Skal du sælge, kan du løbende følge interessen for din bolig og meget mere.


Kontakt Mægler

Din bolig

* Der samles ingen personlige oplysninger uden dit udtrykkelige samtykke. Ved at klikke på denne checkboks giver du dit samtykke til, at dine data samles og behandles af RealMæglerne A/S for at kunne kontakte dig. Du kan til enhver tid tilbagekalde dit samtykke. For at gøre dette skal du blot sende en meddelelse til info@realmaeglerne.dk. Læs mere på privatlivspolitikkerne.

Tilmeld til åbent hus

Adresse:
Dato:
Tidspunkt:

Kontakt Mægler

* Der samles ingen personlige oplysninger uden dit udtrykkelige samtykke. Ved at klikke på denne checkboks giver du dit samtykke til, at dine data samles og behandles af RealMæglerne A/S for at kunne kontakte dig. Du kan til enhver tid tilbagekalde dit samtykke. For at gøre dette skal du blot sende en meddelelse til info@realmaeglerne.dk. Læs mere på privatlivspolitikkerne.

Bestil gratis salgsvurdering

Din bolig

Send salgsvurdering til:

Vælg mægler

* Der samles ingen personlige oplysninger uden dit udtrykkelige samtykke. Ved at klikke på denne checkboks giver du dit samtykke til, at dine data samles og behandles af RealMæglerne A/S for at kunne kontakte dig. Du kan til enhver tid tilbagekalde dit samtykke. For at gøre dette skal du blot sende en meddelelse til info@realmaeglerne.dk. Læs mere på privatlivspolitikkerne.

Bestil gratis salgsvurdering

Din bolig

Send salgsvurdering til:

Vælg mægler

* Der samles ingen personlige oplysninger uden dit udtrykkelige samtykke. Ved at klikke på denne checkboks giver du dit samtykke til, at dine data samles og behandles af RealMæglerne A/S for at kunne kontakte dig. Du kan til enhver tid tilbagekalde dit samtykke. For at gøre dette skal du blot sende en meddelelse til info@realmaeglerne.dk. Læs mere på privatlivspolitikkerne.